Zum Inhalt springen
WGS
Liegenschaftsverwaltungs GmbH
WGS
  • Home
  • Objekte mieten
    • Büros
    • Gewerbeimmobilien & Lager
    • Flexible Lagernutzflächen und moderne Büros in Linz
  • Objekt Harterplateau
  • Business Center Linz
  • Kontakt
Search:
  • Home
  • Objekte mieten
    • Büros
    • Gewerbeimmobilien & Lager
    • Flexible Lagernutzflächen und moderne Büros in Linz
  • Objekt Harterplateau
  • Business Center Linz
  • Kontakt

Autoren-Archive: t.schmid

Sie befinden sich hier:
  1. Start
  2. Autor/in t.schmid
Büro Leonding
Leonding A4Leonding A4Büro Leonding

Freies Büro 150m2

Freies BüroVon t.schmid7. April 2025
Lage Großraum
Ansichten 1LageplanLage Großraum

Grundrisse 1 und 3 neu

Grundrisse_A1a_A1b_neuVon t.schmid19. Januar 2018
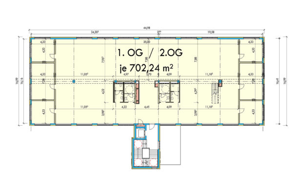
A1a: 1.&2. Obergeschoss
A1b: ErdgeschossA1a: ErdgeschossA1a: 1.&2. Obergeschoss

Grundrisse A1a und A1b

Grundrisse_A1a_A1bVon t.schmid7. November 2017
Büroflächen in Leonding
Büroflächen in LeondingBüroflächen in LeondingBüroflächen in Leonding

Grundrisse

GrundrisseVon t.schmid28. September 2016
WGS
© 2026 WGS Liegenschaftsverwaltungs-GmbH

Website by: www.cibus.at

Go to Top