BÜROFLÄCHEN IN LEONDING AM HARTERPLATEAU / MEIXNERKREUZUNG

NÜTZEN SIE DIE CHANCE AUF EXKLUSIVE BÜROFLÄCHEN IN LEONDING

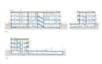
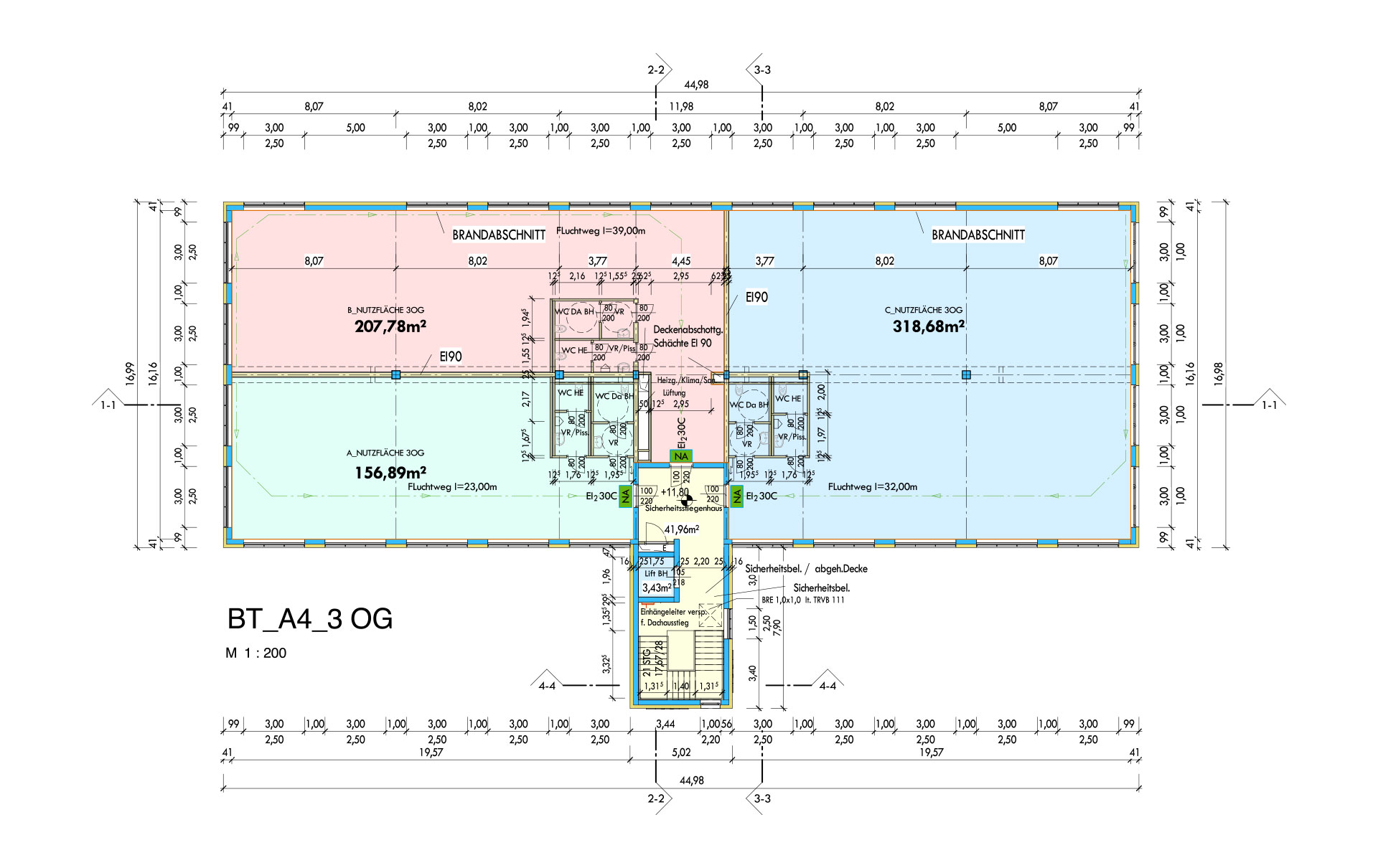
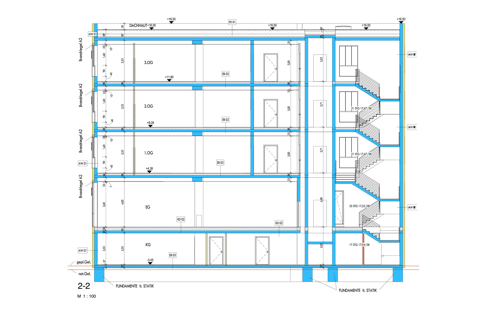
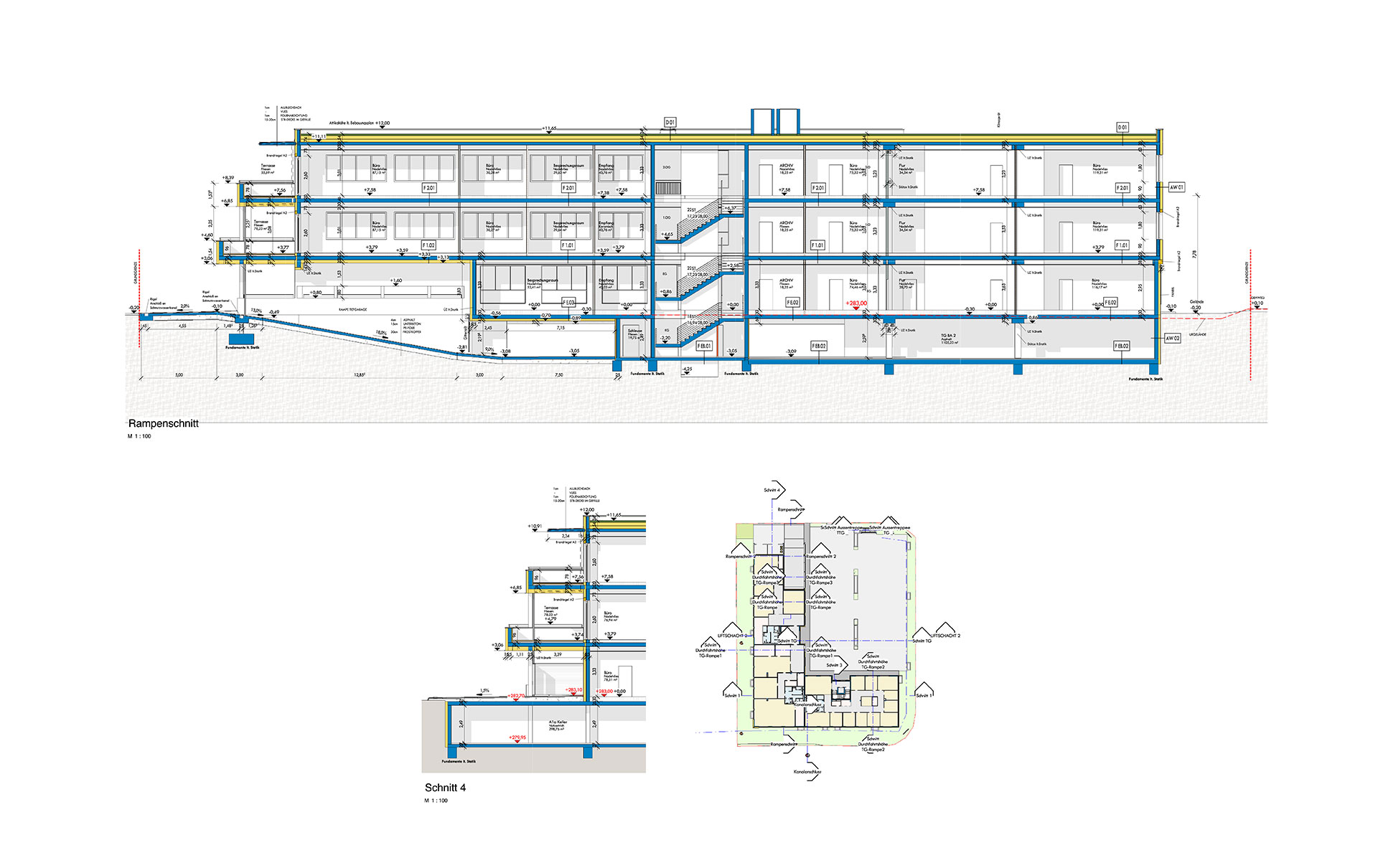
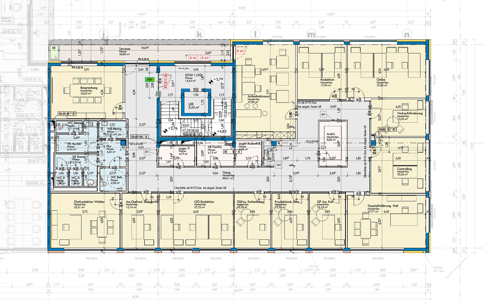
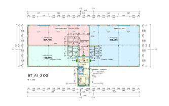
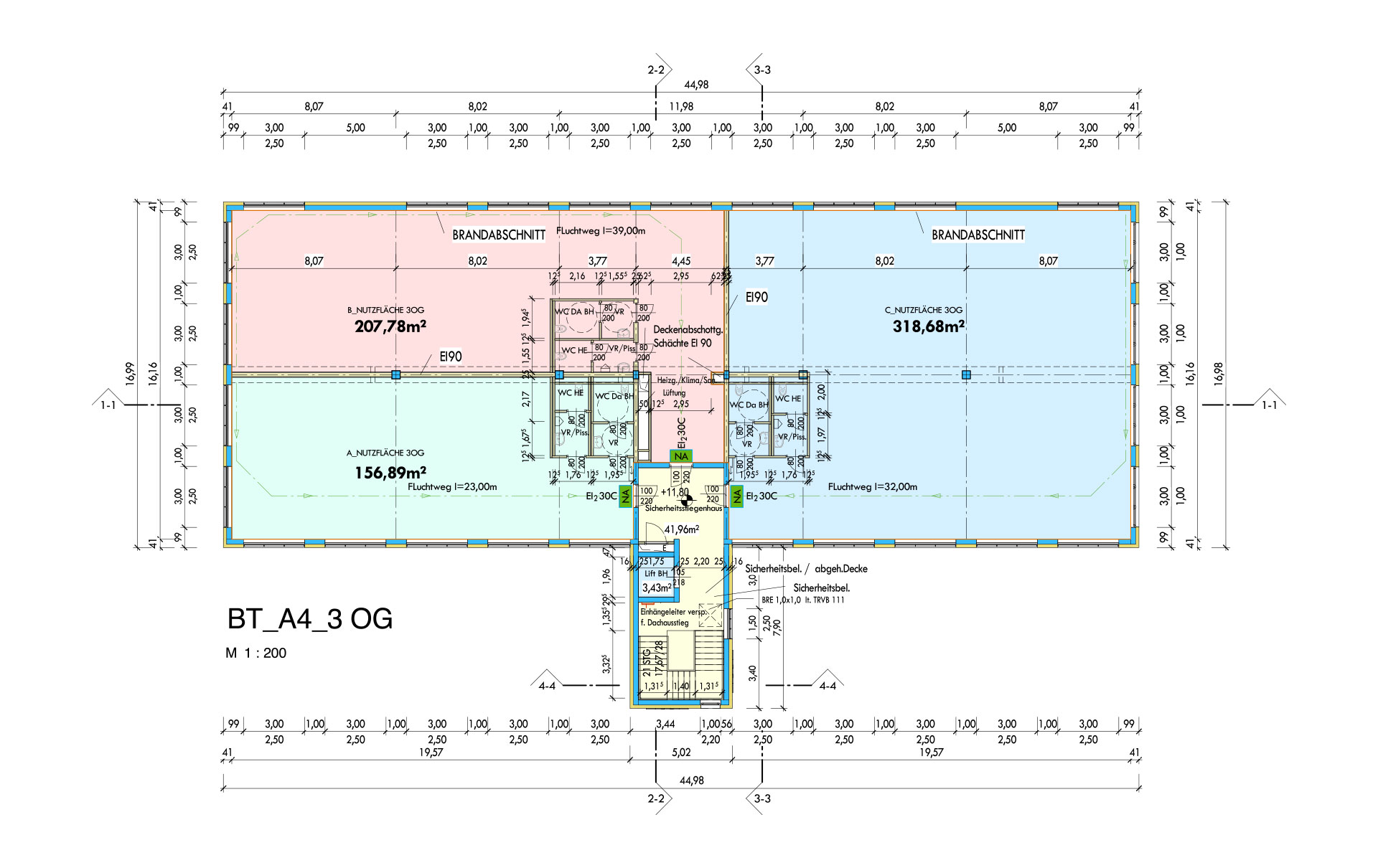
DAS GEBÄUDE A4

Mietobjekt mit Büro-, Handels-, Dienstleistungs-, Gastronomie-, Geschäfts- und Verkaufsflächen – hochwertig ausgestattet, mit bester Infrastruktur und Parkplätzen.

Energiekennzahl: HWB 19 fGEE O,70

Im Gebäude A4 sind bereits alle Flächen vermietet.

DOWNLOADS

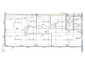
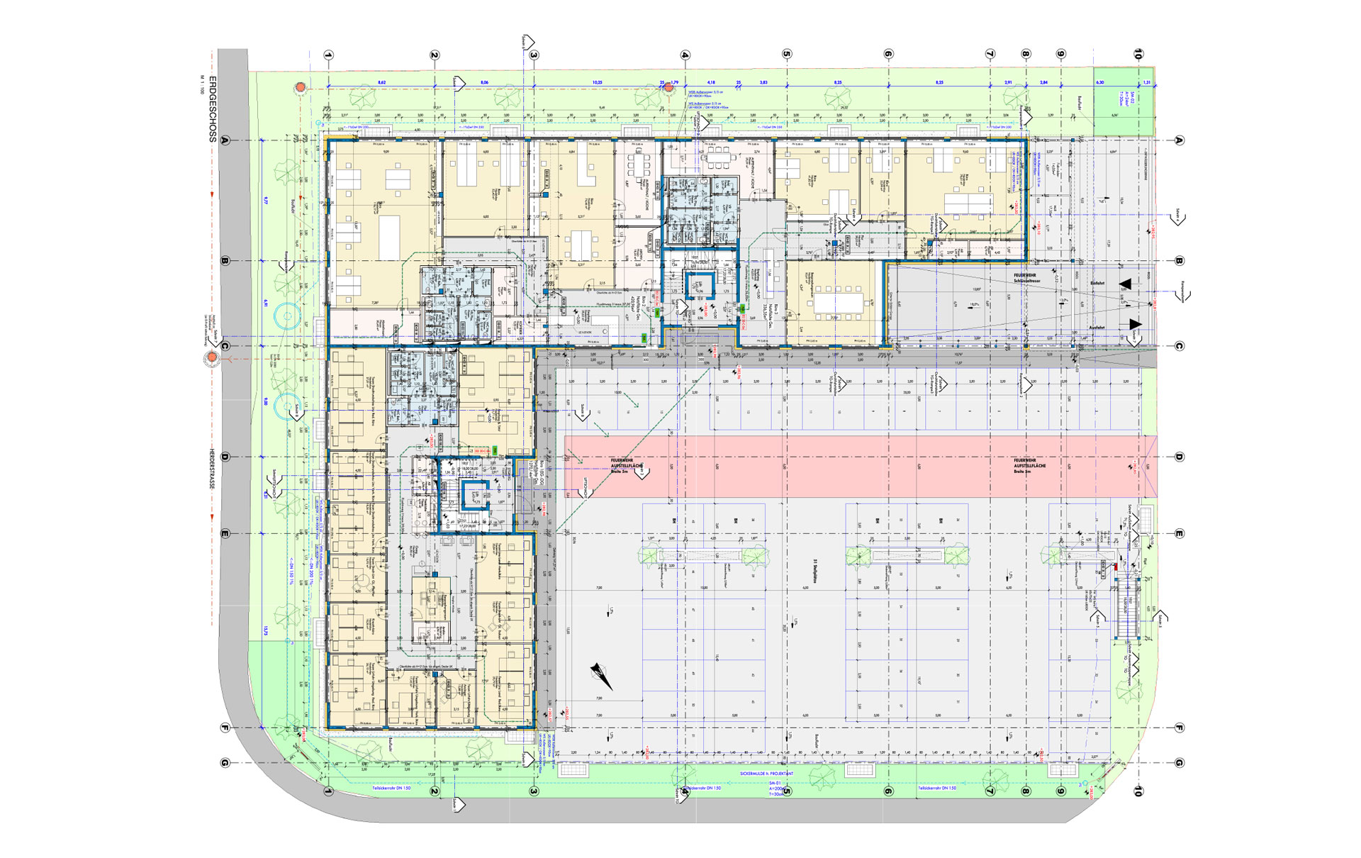
Pläne / Grundrisse Gebäude A4

als PDF downloaden

Pläne / Grundrisse Gebäude A4

als PDF downloaden

Energieausweis Gebäude A4

als PDF downloaden

Energieausweis Gebäude A4

als PDF downloaden

Ansichten / Fotos

als PDF downloaden

Ansichten / Fotos

als PDF downloaden

Die Gebäude 1 und 3 wurden 2019 fertiggestellt.

499,41 m² Bürofläche im Gebäude 1, 1. Obergeschoss, ab 01.07.2026 verfügbar.

Fragen Sie jetzt unverbindlich für eine Detailbesprechung an.

Büroflächen in Leonding mieten, Handels-, Dienstleistungs-, Geschäfts- und Verkaufsflächen – hochwertig ausgestattet, mit bester Infrastruktur mit Frei- und Tiefgaragenparkplätzen.

Beachten Sie die großzügige Parkplatzsituation sowie die Tiefgarage, welche auf den Visualisierungen 1 und 3 ersichtlich sind. Die Büroflächen sind bestimmt für das Gebäude 1 und 3.

SIE HABEN FRAGEN?

Wir freuen uns über Ihre Kontaktaufnahme.

GRUNDRISSE & PLÄNE DER GEBÄUDE 1 und 3

Büroflächen in Leonding am Harterplateau / Meixnerkreuzung – eine attraktive Lösung für Geschäftskunden

In der Region Leonding gibt es eine Vielzahl von attraktiven Büroflächen für Geschäftskunden. Diese Flächen bieten eine hervorragende Infrastruktur, eine hohe Verfügbarkeit an Parkplätzen und eine gute Anbindung an das öffentliche Verkehrssystem. Darüber hinaus bieten sie auch eine hohe Flexibilität, um den Bedürfnissen der Geschäftskunden gerecht zu werden.

Die Suche nach einer geeigneten Bürofläche ist für viele Unternehmen eine Herausforderung. Eine gute Lage, ausreichend Platz und ein angemessenes Preis-Leistungs-Verhältnis sind dabei nur einige der wichtigsten Kriterien. In Leonding gibt es jedoch eine Vielzahl an Büroflächen, die diese Anforderungen erfüllen und noch mehr zu bieten haben.

Vorteile einer Bürofläche in Leonding

Leonding bietet Unternehmen nicht nur eine hervorragende Verkehrsanbindung, sondern auch eine attraktive Wohn- und Arbeitsumgebung. Die Stadt verfügt über eine moderne Infrastruktur, zahlreiche Freizeitmöglichkeiten und eine hohe Lebensqualität, was sie zu einem beliebten Wohnort für Mitarbeiter macht.

Große Auswahl an Büroflächen

In Leonding am Harterplateau / Meixnerkreuzung gibt es eine große Auswahl an Büroflächen, die für jede Größe und jeden Bedarf geeignet sind. Von kleinen Büros für Start-ups bis hin zu großen Flächen für größere Unternehmen ist alles verfügbar. Die Büroflächen sind modern ausgestattet und verfügen über alle notwendigen Annehmlichkeiten, wie z.B. hochwertige Klimaanlagen, moderne Konferenzräume und schnelle Internetverbindungen.

flexible Mietoptionen

Die Büroflächen in Leonding bieten Unternehmen auch flexible Mietoptionen. Es ist möglich, die Fläche für einen kurzen Zeitraum oder auch langfristig zu mieten. Auch die Möglichkeit einer Teilmiete oder einer flexiblen Nutzung ist gegeben.

Wirtschaftliche Vorteile

Neben den oben genannten Vorteilen sind auch wirtschaftliche Vorteile gegeben. Die Stadt ist Teil einer wachsenden Region mit einem starken Wirtschaftswachstum und einer hohen Anzahl an Arbeitsplätzen.

Lage und Verkehrsanbindung

Leonding am Harterplateau / Meixnerkreuzung liegt im Herzen von Oberösterreich und ist daher optimal für Geschäftskunden erreichbar. Die Region verfügt über eine hervorragende Verkehrsanbindung, darunter die Autobahn A1 und die Bundesstraße B1, die die Region mit dem übrigen Österreich sowie mit Deutschland verbinden. Darüber hinaus gibt es auch eine gute Anbindung an das öffentliche Verkehrssystem, darunter Straßenbahnen und Busse, die regelmäßig in die Stadt fahren.

Büroflächenangebot

Das Büroflächenangebot in Leonding am Harterplateau / Meixnerkreuzung ist vielfältig und umfasst sowohl moderne Neubauten als auch renovierte Altbauten. Die Büroflächen sind in verschiedenen Größen verfügbar, um den Bedürfnissen der Geschäftskunden gerecht zu werden. Darüber hinaus gibt es auch flexible Lösungen, wie z.B. Coworking-Space und virtuelle Büros, die besonders für kleinere Unternehmen oder Start-ups geeignet sind.

Ausstattung der Büroflächen

Die Büroflächen in Leonding verfügen über moderne Ausstattungen, die den Geschäftskunden ein angenehmes Arbeitsumfeld bieten. Dazu gehören beispielsweise Klimaanlage, hochwertige Beleuchtung und moderne Kommunikations- und Datentechnik. Darüber hinaus gibt es auch gemeinschaftliche Bereiche, wie Küchen, Lounge-Bereiche und Meetingräume, die von den Geschäftskunden genutzt werden können.

DOWNLOADS 2

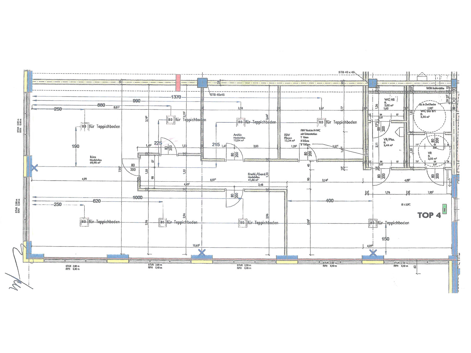
Grundrisse Gebäude 1 und 3

als PDF downloaden

Grundrisse Gebäude 1 und 3

als PDF downloaden

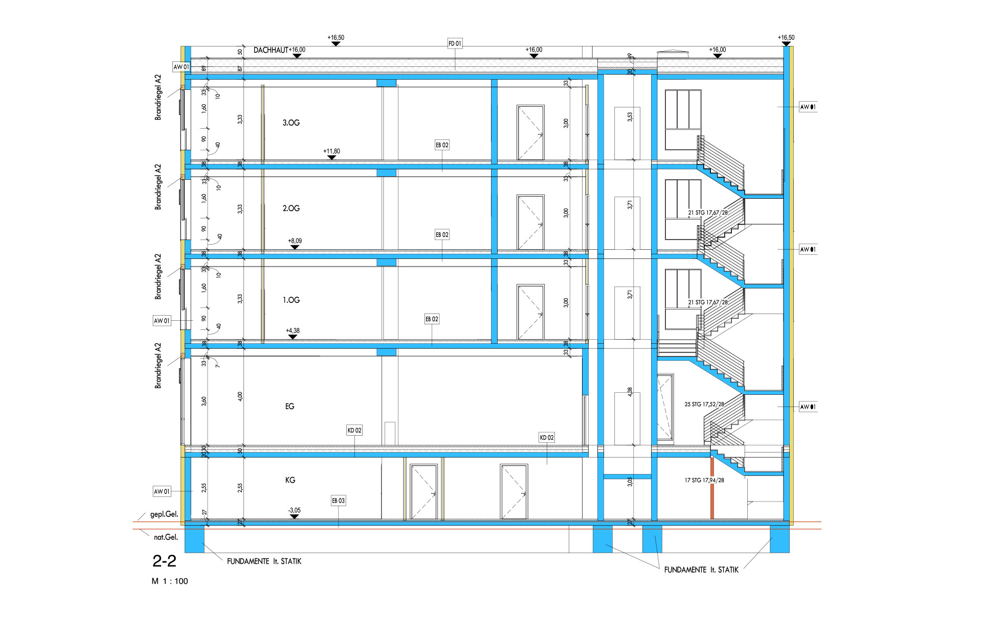
Grundrisse, Schnitte & Pläne

als PDF downloaden

Grundrisse, Schnitte & Pläne

als PDF downloaden

Ansichten / Fotos

als PDF downloaden

Ansichten / Fotos

als PDF downloaden

Energieausweis

als PDF downloaden

Energieausweis

als PDF downloaden

Sie sehen gerade einen Platzhalterinhalt von Google Maps. Um auf den eigentlichen Inhalt zuzugreifen, klicken Sie auf die Schaltfläche unten. Bitte beachten Sie, dass dabei Daten an Drittanbieter weitergegeben werden.

Mehr Informationen

Optimale Verkaufsflächen und Mietobjekte in Leonding

Willkommen auf der Unterseite für Büroflächen in Leonding der WGS Liegenschaftsverwaltungs GmbH! Wir bieten Ihnen hochwertige Verkaufsflächen und Mietobjekte, die perfekt auf die Bedürfnisse moderner Unternehmen zugeschnitten sind. Entdecken Sie unser umfassendes Angebot und finden Sie die ideale Immobilie für Ihr Business in Leonding.

Attraktive Verkaufsflächen und Mietobjekte in Leonding

Unsere Büroflächen in Leonding bieten Ihnen eine erstklassige Umgebung für Ihre geschäftlichen Aktivitäten. Unsere Angebote zeichnen sich durch folgende Merkmale aus:

Moderne Ausstattung: Unsere Büroflächen und Mietobjekte sind mit modernster Technik und hochwertiger Infrastruktur ausgestattet, um Ihnen einen reibungslosen Arbeitsablauf zu ermöglichen.

Flexible Mietoptionen: Wir bieten flexible Mietkonditionen, die sich an die individuellen Bedürfnisse Ihres Unternehmens anpassen lassen, ob Sie eine langfristige oder kurzfristige Lösung suchen.

Zentrale Lage: Die Büroflächen in Leonding befinden sich in zentraler Lage mit hervorragender Verkehrsanbindung, sodass Ihre Mitarbeiter und Kunden bequem zu Ihnen gelangen können.

Warum Verkaufsflächen und Mietobjekte in Leonding mieten?

Leonding ist ein attraktiver Standort für Unternehmen jeder Größe. Unsere Büroflächen bieten Ihnen zahlreiche Vorteile:

Hervorragende Infrastruktur: Profitieren Sie von einer optimalen Infrastruktur mit schnellen Internetverbindungen, modernen Konferenzräumen und professionellen Empfangsbereichen.

Repräsentative Adresse: Eine Adresse in Leonding verleiht Ihrem Unternehmen ein professionelles Image und erhöht Ihre Sichtbarkeit und Glaubwürdigkeit bei Kunden und Geschäftspartnern.

Kosteneffizienz: Unsere flexiblen Mietoptionen ermöglichen es Ihnen, die Kosten für Ihre Büroflächen optimal zu planen und an Ihre Bedürfnisse anzupassen.

Erstklassiger Service und Unterstützung

Unser Team bei WGS Liegenschaftsverwaltungs GmbH bietet Ihnen umfassenden Service und Unterstützung, um sicherzustellen, dass Ihr Büroalltag reibungslos verläuft. Wir bieten:

Individuelle Beratung: Unsere Experten beraten Sie gerne, um die perfekte Verkaufsfläche oder das passende Mietobjekt für Ihr Unternehmen zu finden.

Technischer Support: Wir bieten technischen Support, um sicherzustellen, dass Ihre IT-Systeme und Büroausstattung stets einwandfrei funktionieren.

Zusätzliche Dienstleistungen: Profitieren Sie von zusätzlichen Dienstleistungen wie Reinigungsservice, Post- und Paketservice sowie Catering für Ihre Meetings und Veranstaltungen.

Fazit

Entdecken Sie die Vorteile unserer Büroflächen und Mietobjekte in Leonding mit der WGS Liegenschaftsverwaltungs GmbH. Unsere modernen und flexibel gestaltbaren Verkaufsflächen bieten Ihnen die perfekte Umgebung für Ihr Business. Besuchen Sie unsere Webseite und finden Sie die passende Immobilie für Ihr Unternehmen. Vertrauen Sie auf WGS Liegenschaftsverwaltungs GmbH – Ihr Partner für hochwertige Verkaufsflächen und Mietobjekte in Leonding.